
發布時間:2023-02-01 15:14:03
信息來源: 本站
所屬分類:防爆正壓柜
粉塵防爆控制箱(柜)
1、21區、22區。
2、環境溫度—5℃-+40℃。
3、相對溫度不大于95%(+25℃)。
4、無劇烈沖擊、振動和顛簸。
5、粉塵防爆危險環境。
6、適用于石油石化、化工、釀酒、醫藥、油漆、紡織、印染、**設施等爆炸性危險環境;
13193680197
一、粉塵防爆控制箱(柜)適用范圍:
1、21區、22區。
2、環境溫度—5℃-+40℃。
3、相對溫度不大于95%(+25℃)。
4、無劇烈沖擊、振動和顛簸。
5、粉塵防爆危險環境。
6、適用于石油石化、化工、釀酒、醫藥、油漆、紡織、印染、**設施等爆炸性危險環境;
二、粉塵防爆控制箱(柜)結構特點:
1、外殼由冷軋鋼板折彎焊接而成,表面經高速拋丸后靜電噴塑,外形美觀。
2、密封圈式電纜引入裝置,各可拆卸組合面有密封墊、環、圈、帽。
3、本產品推出新型設計方案,結構合理、通用性強、使用壽命高、外形美觀。
4、可按客戶要求特殊定制。
三、主要技術參數:
1、額定電壓:AC660V、380V、220V
2、防爆標志:Ex tD A21 IP66 T130℃
3、防護等級:IP65
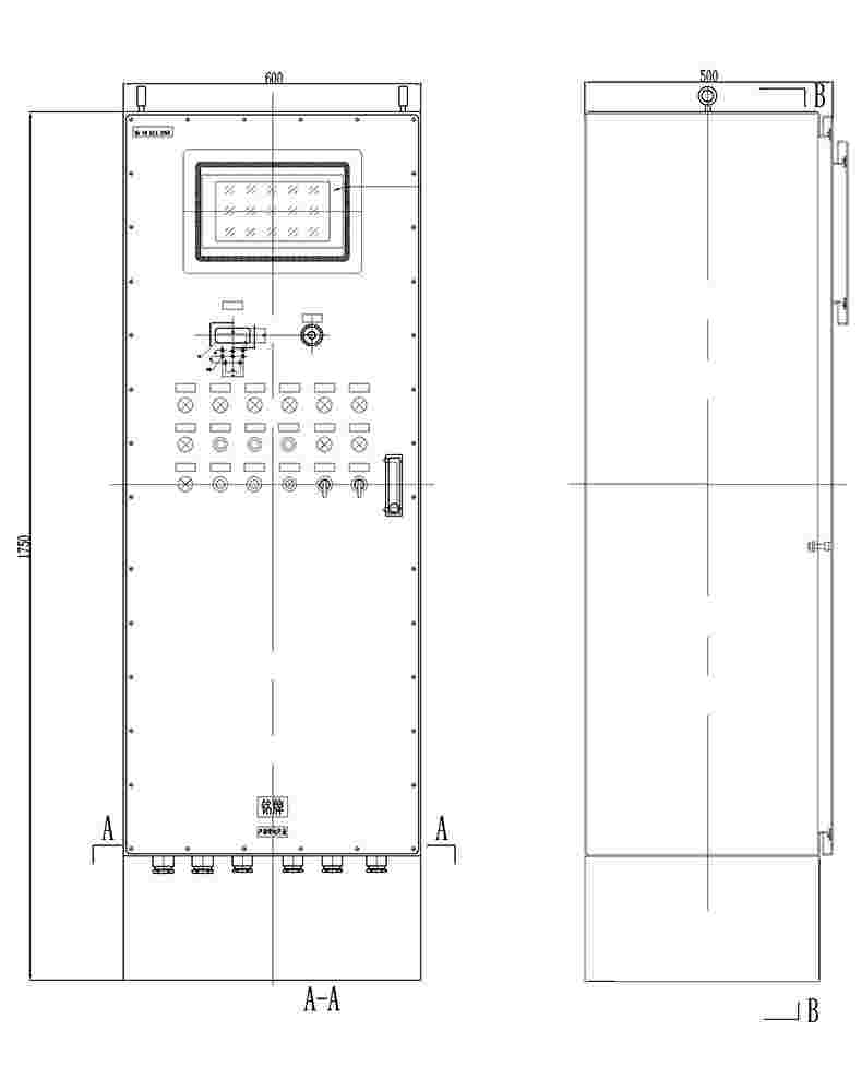
四、外形及安裝尺寸舉例:

●本公司保留以上宣傳數據的解釋權利。
●以上產品涉及設計參數及數據請以機身銘牌為準,恕不另行通知
●產品圖片與實物可能會有輕微差別,請以實物為準
●其他詳情請參閱本產品使用手冊
●本公司保留以上宣傳數據的解釋權利
河南同騰防爆電器有限公司專業生產銷售:防爆空調、防爆除濕機、防爆加濕機、防爆風機盤管、防爆冰箱、智能型防爆空調機組、防爆風幕機、防爆干燥箱、防爆恒溫恒濕箱、防爆調溫除濕機、防爆降溫除濕機、防爆精密空調、防爆恒溫恒濕機、屋頂式防爆空調、多聯式防爆空調、風管式防爆空調、凈化型防爆空調機組、防爆配電箱、防爆正壓柜、防爆分析小屋、防爆配電柜、防爆軸流風機、防爆屋頂風機、防爆邊墻風機、防爆暖風機等。
防爆暖通系列: 業務負責人:葛經理 13193680197
防爆冰箱系列: 業務負責人:葛經理 15660190510
防爆箱柜系列: 業務負責人:許經理 17513770287
投訴電話:0377-62321988
郵箱:hnnyttfb@163.com
聯系地址:河南省南陽市鄧州產業孵化園C5棟-4層